Home
Settori di Attività
Progetti
Contatti
Seleziona una pagina
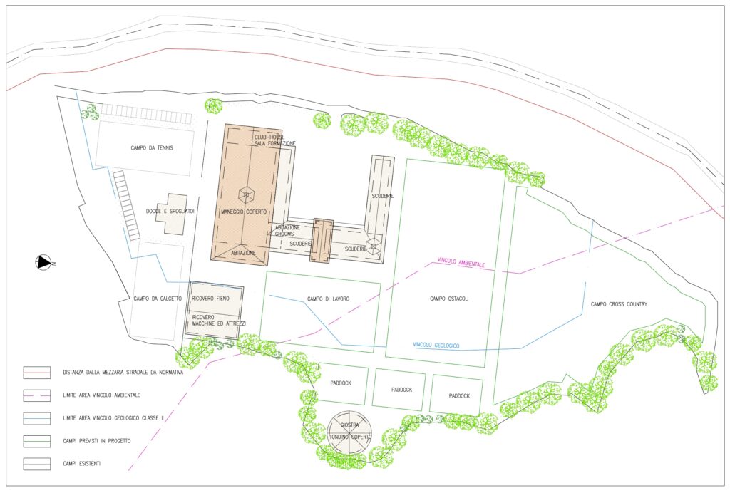
La terriera - centro ippico intersport Verbano a Nebbiuno
Centro ippico a San Bernardino Verbano